Ihr erfahrener und seriöser Partner rund um Ihre Immobilie

Stilvolle Neubauwohnung mit weitem Blick über Wiesen und Felder, Am Heuweg 3 30900 Wedemark – Gemarkung Mellendorf

  • 379.000 €
  • Eigentumswohnung
  • Immobilientyp
  • 3
  • Zimmer
  • 1
  • Bad
  • 90
  • 2026
  • Baujahr

Übersicht

Exposé Nr.: 1545-3
  • Eigentumswohnung
  • Immobilientyp
  • 3
  • Zimmer
  • 1
  • Bad
  • 90
  • 2026
  • Baujahr

Beschreibung

Wohnen Am Heuweg 3 Wohnungen verkauft

Stilvolle Neubauwohnung mit weitem Blick über Wiesen und Felder

Am Heuweg 3 30900 Wedemark – Gemarkung Mellendorf

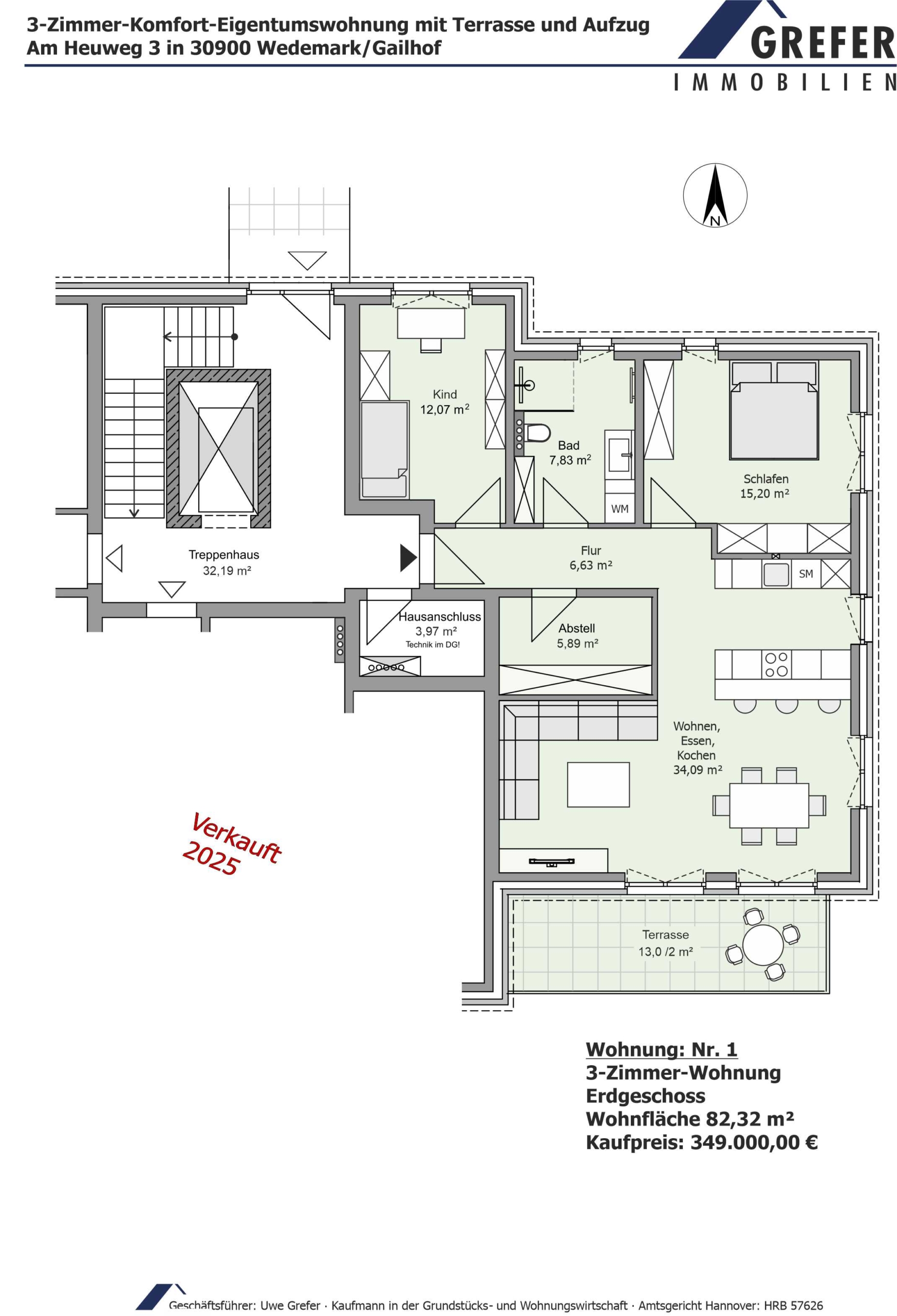
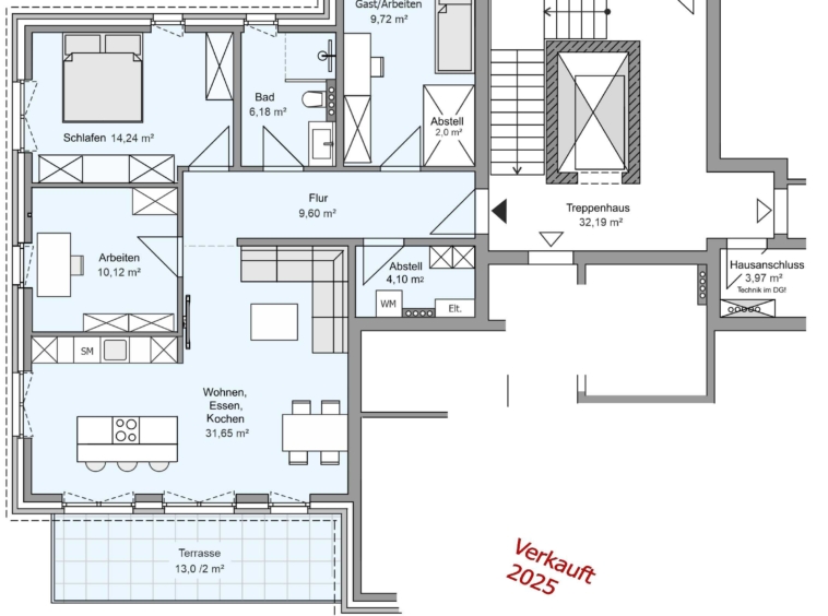
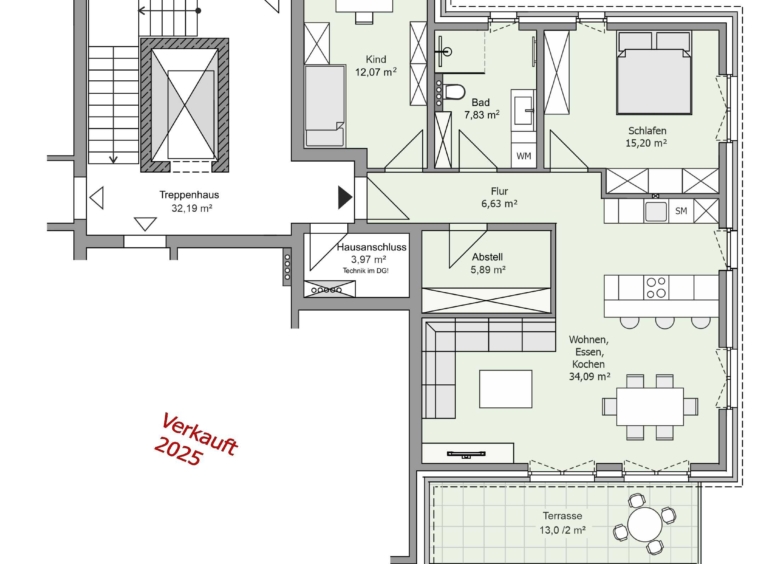
Moderne 3-Zimmer-Eigentumswohnungen im Erdgeschoss mit Terrasse und Gartenanteil im Obergeschoss mit Balkon

Wohnung 1 Erdgeschoss rechts mit Garten und Terrasse verkauft 2025

Wohnung 3 Erdgeschoss rechts mit Garten und Terrasse verkauft 2025

Wohnung 4 I Obergeschoss links Südbalkon verkauft 2025

1815 m² Grundstück

Derzeit im Bau geplante Fertigstellung: August 2026·

Aufzug

Erdwärme Energiebedarf: ca. 37 kWh/(m²·a), Energieeffizienz: Klasse A

Lichtdurchflutete Architektur, großzügige Raumhöhen und ein unverbaubarer Blick in die Natur prägen dieses besondere Wohnangebot im beliebten Wohnort Wedemark, nur wenige Minuten von Hannover entfernt.

Die Wohnung entsteht in einem ruhigen Neubaugebiet in der Gemarkung Mellendorf 2 km vom Bahnhof entfernt, erschlossen durch eine verkehrsarme Sackgasse und eingebettet in eine Umgebung aus altem Baumbestand, Wiesen und Feldern.

Ausstattungsmerkmale:

  • großzügige Raumhöhe von ca. 2,82 m
  • bodentiefe Fensterelemente
  • elektrische Rollläden
  • Fußbodenheizung in allen Räumen
  • komfortable Dusche mit Glasabtrennung
  • Aufzug
  • Terrasse mit Blick in den Garten
  • Abstellraum
  • Gäste-WC

Ein Zuhause für Menschen, die modern wohnen und gleichzeitig die Ruhe der Natur genießen möchten.

Schon beim Betreten der Wohnung wird deutlich, dass hier Wert auf Großzügigkeit und Licht gelegt wurde. Die Deckenhöhe von ca. 2,82 m verleiht den Räumen eine besondere Offenheit.

Der Mittelpunkt der Wohnung ist der großzügige Wohn- und Essbereich mit offener Küche. Große, bodentiefe Fensterelemente öffnen den Raum nach außen und schaffen eine fließende Verbindung zwischen Innenraum und Landschaft.

Hochwertige Materialien und zeitlose Ausstattung

Die Ausstattung folgt einem klaren Anspruch: hochwertige Materialien, moderne Technik und langlebige Qualität.

Großformatige keramische Bodenfliesen im mediterranen Stil verleihen den Räumen eine elegante und zugleich warme Atmosphäre. In den Wohnräumen sorgen hochwertige Vinylböden für eine angenehme Wohnqualität.

Die Gestaltung verbindet moderne Architektur mit zeitloser Eleganz und schafft damit ein Wohnumfeld, dass auch langfristig seinen Wert behält.

Nachhaltige Energie und moderne Technik

Das Gebäude wird mit einer umweltfreundlichen Erdwärmepumpe ausgestattet und erfüllt hohe energetische Standards.

Die Heiztechnik – beispielsweise von Viessmann – versorgt die Wohnung über eine Fußbodenheizung, die für eine gleichmäßige und angenehme Wärme sorgt.

Damit profitieren Eigentümer von geringen Energiekosten und nachhaltiger Gebäudetechnik.

Leben in Mellendorf – alles in unmittelbarer Nähe

 

Mellendorf gilt als das Zentrum der Wedemark und bietet eine ausgezeichnete Infrastruktur.

Hier finden sich:

  • zahlreiche Einkaufsmöglichkeiten
  • sämtliche Schulformen
  • Kindergärten
  • Volkshochschule
  • Restaurants und Cafés
  • Ärzte und Apotheken
  • Rathaus
  • Freibad und Eissporthalle

Gleichzeitig ist Mellendorf von einer weiten, naturnahen Landschaft umgeben, die ideale Möglichkeiten für Spaziergänge, Radtouren und Freizeitaktivitäten bietet.

 

Hervorragende Verkehrsanbindung

Der Bahnhof Mellendorf liegt nur etwa 2 km entfernt.

Mit der S-Bahn Hannover (Linie S4) erreichen Sie den Hannover Hauptbahnhof in etwa 23 Minuten.

Auch mit dem Auto ist die Lage hervorragend angebunden:

  • Bundesautobahn A7 in etwa 2 Minuten
  • Anschluss an die Bundesautobahn A2
  • über die Bundesautobahn A37 erreichen Sie Hannover in rund 25 Minuten

 

Eine zusätzliche Provision wurde nicht erhoben.

Adresse

  • Ort Mellendorf
  • Region / Bereich Region Hannover

Details

  • Exposé Nr.: 1545-3
  • Preis: 379.000 €
  • Immobilien Größe: 90 m²
  • Grundstücksgröße: 1815
  • Zimmer: 3
  • Bad: 1
  • Garagen Größe: 15
  • Baujahr: 2026
  • Immobilientyp: Eigentumswohnung
  • Aktueller Status: Archiv verkaufte

Compare listings

Vergleichen
Cornelia Füchsel
  • Cornelia Füchsel